Tereink, Termeink
lehetőség
Bemutatkozó
Tekintsd meg kiajánlónkat, amely részletesen bemutatja helyszínünket, szolgáltatásainkat és lehetőségeinket.
Bejárati tér
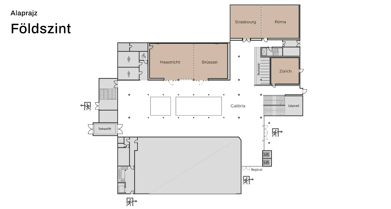
Rendezvényházunk bejárati tere a zökkenőmentes, kétirányú beléptetésre lett tervezve, biztosítva a vendégek gördülékeny érkezését és távozását. Közvetlenül a főbejáratnál egy tágas, 20 nm-es regisztrációs terület található, amely ideális a vendégek fogadására és a bejelentkezések hatékony lebonyolítására. Ezt kiegészítve, közvetlenül a bejárat előtt fedett és nyitott teraszmegoldásokat is kínálunk, kültéri kiállító- vagy közösségi teret biztosítva rendezvényedhez,
Galéria
A főbejáraton belépve a Galéria impozáns, természetes fénnyel megvilágított látványa tárul elénk. A tágas, körüljárható térből egyedülálló kilátás nyílik a medencetérre, átmenetet képezve a két szint között. A Galéria nem csupán összeköti a bejárati és a medenceszintet, hanem kiváló helyszínként is szolgál művészeti kiállításokhoz vagy a kiállítók standjaihoz. A teherliftnek köszönhetően még a nagyméretű dekorelemek vagy kiállított autó is kényelmesen elhelyezhető itt.

Galéria adatai
- 545 m2 alapterület
- 40.0m x 15.5m x 4.1m
- Szekcionálható megvilágítás
- Természetes fénnyel
Medencetér
Különleges medenceterünk ideális nappali rendezvényekhez és esti gálavacsorákhoz.
A víztükör dekorációs elemként is működhet, színezhető víztükörrel, dekorelemekkel emelhető a hangulat. A medence felszíne befedhető, színpaddá vagy lounge térré is alakítható, így tökéletes teret biztosít előadásokhoz, kiállításokhoz elegáns gálaestekhez vagy gyertyafényes koncertekhez.

Medencetér adatai
- 620 m2 alapterület
- 40m x 15.5m x 4.1m
- 15m x 5m befedhető medence
- 6m x 5m állandó dobogó
- Szekcionálható megvilágítás
- Természetes fény
Koppenhága terem

Koppenhága terem adatai
- 420 m2 alapterület
- 26.5m x 15.5m x 8.25m
- Szekcionálható megvilágítás
- Természetes fény
SZEKCIÓTERMEK

- Strasbourg és Róma
- Maastricht és Brüsszel
- Nizza és Amsterdam
- Zürich
Ruhatár
Beépített ruhatárunk 500 főig biztosított, amely igény esetén akár 1000 főig bővíthető. A személyzetről mi gondoskodunk!
Sétálj körbe!
3D virtuális séta
Fedezd fel az épületet, és ismerd meg részleteit az infópontok segítségével.
|
TEREM
|
m²
|
ÁLLÓFOGADÁS
|
SZÉKSOROS
|
TÁBLAASZTAL
|
TULAJDONSÁGOK
|
||
|---|---|---|---|---|---|---|---|
|
Koppenhága
|
420
|
500
|
500
|
320
|
|
|
|
|
Nizza
|
116
|
120
|
112
|
-
|
|
|
|
|
Amszterdam
|
74
|
80
|
64
|
64
|
|
|
|
|
Maastricht
|
120
|
125
|
112
|
80
|
|
|
|
|
Brüsszel
|
90
|
80
|
64
|
50
|
|
|
|
|
Strasbourg
|
78
|
80
|
64
|
64
|
|
|
|
|
Róma
|
96
|
100
|
96
|
60
|
|
|
|
|
Zürich
|
63
|
-
|
60
|
40
|
|
|
|
|
Medencetér
|
200
|
200
|
500
|
620
|
|
|
|
Tekintsd meg képgalériánkat
Referenciák
Akik már tartottak nálunk rendezvényt

















